マンションモンテベルデ甲陽園
価格2,200万円
兵庫県西宮市甲陽園東山町
阪急甲陽線「甲陽園」駅 徒歩17分
専有面積/118.51m²(約35.84坪)
バルコニー面積/12.53m²(約3.79坪)
ペット飼育可(規約有)
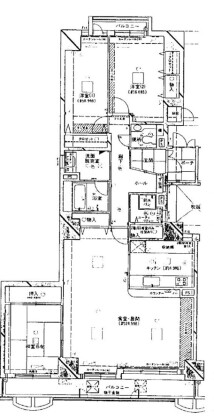
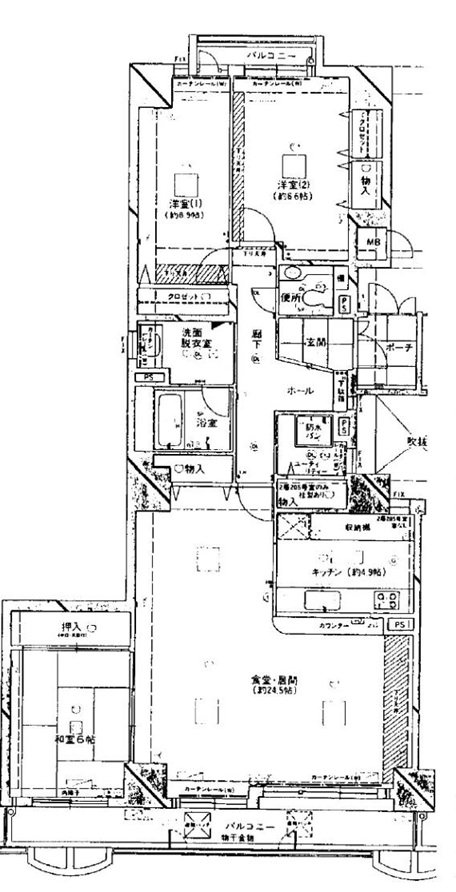
南北両面バルコニー!
採光・通風良好♪
LDKは約29帖と広々!
キッチンと洗面室に窓があるお部屋です!
居室3室とも6帖以上有り♪
◆ローンシミュレーション (この物件を購入した場合の月々の支払い価格の一例です)
頭金から返済期間までの数値は、お客様の資金計画にあわせて変更可能です。
スライダーのつまみを移動するか、または数値を直接(半角で)入力してください。
- 借入金額:
- 万円
- ※借入金額は1億円以内に限ります。
- 頭金:
- 万円
- ボーナス返済:
- 万円 × 年2回
- 返済金利:
- %
- 返済期間:
- 年
- 毎月の返済金額(目安)
- 約万円/月
- ※返済期間:5年〜35年までとなります。
- ※ボーナス返済は年2回で計算しています。
- ※借入金額は1億円以内に限ります。
- ※シミュレーションでの試算(計算)結果は、あくまでも目安です。実際にローン契約をする際は、詳細を金融機関にご確認ください。
- ※実際のローン契約の際には、諸費用が別途必要です(手数料や印紙税、保証料など)。契約の際にご確認ください。
| 間取り | 3LDK |
|---|---|
| 構造 | 鉄筋コンクリート造6階建2階部分 |
| 築年月 | 1991年3月 |
| バルコニー向き | 南・北 |
| 土地権利 | 所有権 |
| 総戸数 | 27戸 |
| 管理会社 | 日本ハウズイング(株) |
| 管理形態 | 全部委託 |
| 管理員 | 日勤 |
| 管理費 | 11,050円(月) |
| 修繕積立金 | 11,850円(月) |
| 駐車場 | 空有 10,000円〜15,000円(月) |
| 現況 | 空家 |
| 引渡 | 即 |
| 取引態様 | 仲介 |
| 小学校区 | 甲陽園小学校 |
| 中学校区 | 上ヶ原中学校 |
| 情報更新日 | 2025年10月25日 |
| 物件番号 | 00006299 |
※地図上の位置が実際とは異なる場合がございます。




