マンションパークナード潮芦屋

価格4,380万円

兵庫県芦屋市涼風町

阪神本線「芦屋」駅バス10分「涼風町東」停徒歩2分

専有面積/95.28m²(約28.82坪)
バルコニー面積/16.93m²(約5.12坪)

南東角部屋!陽当たり・通風良好♪
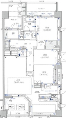
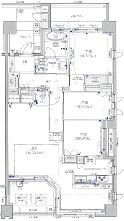
LDK約23.6帖 3LDKの間取り
南北両面バルコニー!
ペット飼育可(規約有)
2026年2月リフォーム済♬

◆ローンシミュレーション (この物件を購入した場合の月々の支払い価格の一例です)

頭金から返済期間までの数値は、お客様の資金計画にあわせて変更可能です。
スライダーのつまみを移動するか、または数値を直接(半角で)入力してください。

借入金額:
万円
※借入金額は1億円以内に限ります。
頭金:
万円
ボーナス返済:
万円 × 年2回
返済金利:
返済期間:
毎月の返済金額(目安)
万円/月
  • ※返済期間:5年〜35年までとなります。
  • ※ボーナス返済は年2回で計算しています。
  • ※借入金額は1億円以内に限ります。
  • ※シミュレーションでの試算(計算)結果は、あくまでも目安です。実際にローン契約をする際は、詳細を金融機関にご確認ください。
  • ※実際のローン契約の際には、諸費用が別途必要です(手数料や印紙税、保証料など)。契約の際にご確認ください。
間取り3LDK
構造鉄筋コンクリート造5階建2階部分
築年月2014年2月
バルコニー向き南・北
土地権利所有権
管理形態全部委託
管理員日勤
管理費9,250円(月)
修繕積立金12,100円(月)
駐車場空有 8,000円~15,000円(月)
現況空家
引渡
取引態様仲介
小学校区潮見小学校
中学校区潮見中学校
情報更新日2026年3月7日
物件番号 00073309