新築戸建兵庫県西宮市老松町
価格6,380万円
兵庫県西宮市老松町
阪急甲陽線「苦楽園口」駅徒歩18分
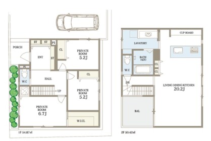
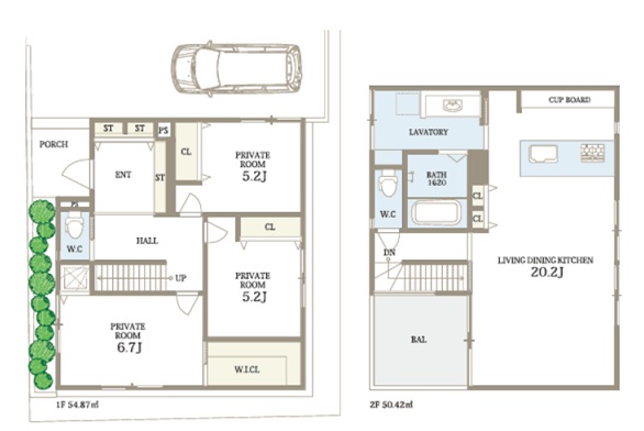
土地面積/99.32m²(約30.04坪)
建延面積/105.29m²(約31.85坪)
2025年8月建築!
敷地面積は約30坪有り!
前面道路は公道4mに面しています!
耐震等級3♪
北夙川小学校 校区♬
閑静な住宅街です!
◆ローンシミュレーション (この物件を購入した場合の月々の支払い価格の一例です)
頭金から返済期間までの数値は、お客様の資金計画にあわせて変更可能です。
スライダーのつまみを移動するか、または数値を直接(半角で)入力してください。
- 借入金額:
- 万円
- ※借入金額は1億円以内に限ります。
- 頭金:
- 万円
- ボーナス返済:
- 万円 × 年2回
- 返済金利:
- %
- 返済期間:
- 年
- 毎月の返済金額(目安)
- 約万円/月
- ※返済期間:5年〜35年までとなります。
- ※ボーナス返済は年2回で計算しています。
- ※借入金額は1億円以内に限ります。
- ※シミュレーションでの試算(計算)結果は、あくまでも目安です。実際にローン契約をする際は、詳細を金融機関にご確認ください。
- ※実際のローン契約の際には、諸費用が別途必要です(手数料や印紙税、保証料など)。契約の際にご確認ください。
| 間取り | 3LDK |
|---|---|
| 構造 | 木造2階建 |
| 駐車場 | 有り |
| 土地権利 | 所有権 |
| 地目 | 宅地 |
| 私道負担 | 無し |
| 都市計画 | 市街化区域 |
| 用途地域 | 第2種低層住居専用地域 |
| 建ペイ率 | 60% |
| 容積率 | 150% |
| 接道状況 | 北西側公道4m |
| 現況 | 完成済 |
| 引渡 | 即 |
| 取引態様 | 仲介 |
| 小学校区 | 北夙川小学校 |
| 中学校区 | 苦楽園中学校 |
| 備考 | 【価格変更】 2026年2月2日 6,480万円→6,380万円 |
| 情報更新日 | 2026年2月24日 |
| 物件番号 | 00079328 |


