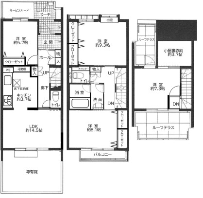
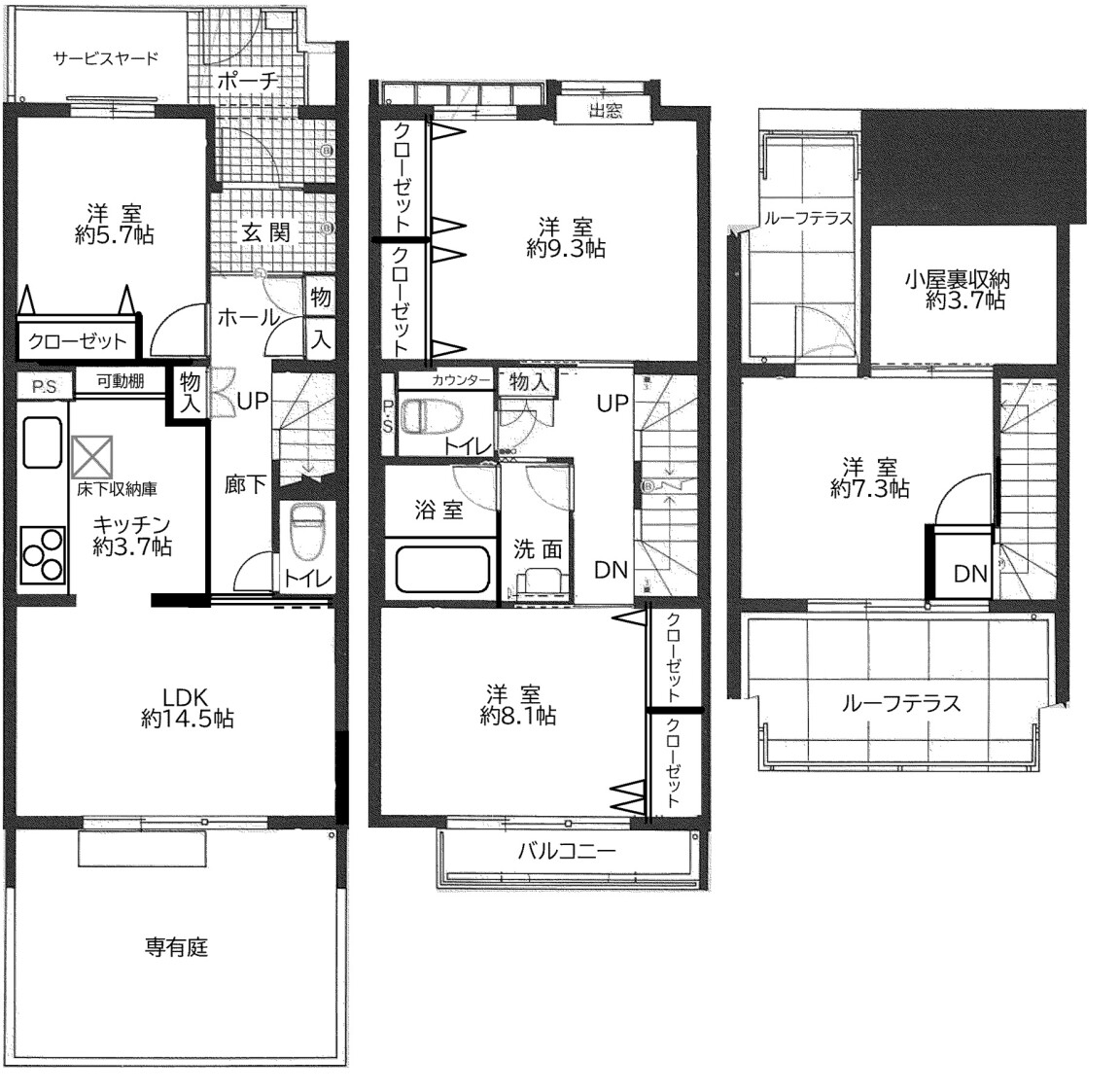
マンション浜風(3)タウンハウス
価格2,599万円(消費税込)
兵庫県芦屋市浜風町
阪神本線「打出」駅徒歩15分
専有面積/110.72m²(約33.49坪)
バルコニー面積/3.42m²(約1.03坪)
メゾネットタイプの3階建て♪
タウンハウス♪
室内リノベーション工事完了♪
南西向きバルコニー!
専用庭有り!
ペット飼育可(規約有)
◆ローンシミュレーション (この物件を購入した場合の月々の支払い価格の一例です)
頭金から返済期間までの数値は、お客様の資金計画にあわせて変更可能です。
スライダーのつまみを移動するか、または数値を直接(半角で)入力してください。
- 借入金額:
- 万円
- ※借入金額は1億円以内に限ります。
- 頭金:
- 万円
- ボーナス返済:
- 万円 × 年2回
- 返済金利:
- %
- 返済期間:
- 年
- 毎月の返済金額(目安)
- 約万円/月
- ※返済期間:5年〜35年までとなります。
- ※ボーナス返済は年2回で計算しています。
- ※借入金額は1億円以内に限ります。
- ※シミュレーションでの試算(計算)結果は、あくまでも目安です。実際にローン契約をする際は、詳細を金融機関にご確認ください。
- ※実際のローン契約の際には、諸費用が別途必要です(手数料や印紙税、保証料など)。契約の際にご確認ください。
| 間取り | 4LDK |
|---|---|
| 構造 | 鉄筋コンクリート造3階建1~3階部分 |
| 築年月 | 1982年11月 |
| バルコニー向き | 南西 |
| 土地権利 | 所有権 |
| 総戸数 | 3戸 |
| 管理費 | 6,500円(月) |
| 修繕積立金 | 20,000円(月) |
| その他使用料 | 振込手数料:105円(月) |
| 現況 | 空室 |
| 引渡 | 即 |
| 取引態様 | 仲介 |
| 小学校区 | 打出浜小学校 |
| 中学校区 | 潮見中学校 |
| 情報更新日 | 2026年2月17日 |
| 物件番号 | 00088711 |










