中古戸建兵庫県西宮市険谷町
価格9,980万円
兵庫県西宮市険谷町
阪急神戸線「夙川」駅バス13分「柏堂町」停
土地面積/463.07m²(約140.07坪)
建延面積/226.41m²(約68.48坪)
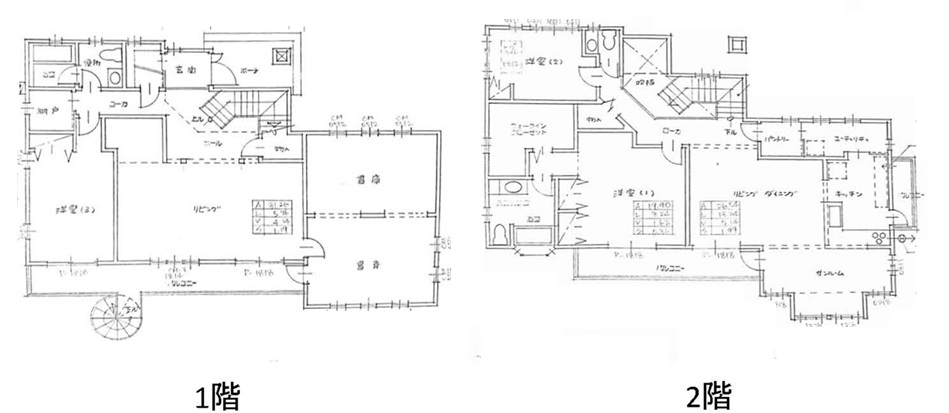
カナダ製建築の注文住宅♬
お庭はイングリッシュ様式でBBQができる
煉瓦製の窯があります♬
西宮一望のパノラマ眺望♬
敷地面積は約140坪有り♪
車は2台駐車可能♪
◆ローンシミュレーション (この物件を購入した場合の月々の支払い価格の一例です)
頭金から返済期間までの数値は、お客様の資金計画にあわせて変更可能です。
スライダーのつまみを移動するか、または数値を直接(半角で)入力してください。
- 借入金額:
- 万円
- ※借入金額は1億円以内に限ります。
- 頭金:
- 万円
- ボーナス返済:
- 万円 × 年2回
- 返済金利:
- %
- 返済期間:
- 年
- 毎月の返済金額(目安)
- 約万円/月
- ※返済期間:5年〜35年までとなります。
- ※ボーナス返済は年2回で計算しています。
- ※借入金額は1億円以内に限ります。
- ※シミュレーションでの試算(計算)結果は、あくまでも目安です。実際にローン契約をする際は、詳細を金融機関にご確認ください。
- ※実際のローン契約の際には、諸費用が別途必要です(手数料や印紙税、保証料など)。契約の際にご確認ください。
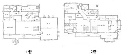
| 間取り | 5LDK+3S |
|---|---|
| 構造 | 木造2階建 |
| 築年月 | 2000年4月 |
| 駐車場 | 2台 |
| 土地権利 | 所有権 |
| 地目 | 宅地 |
| 都市計画 | 市街化区域 |
| 用途地域 | 第1種低層住居専用地域 |
| 建ペイ率 | 40% |
| 容積率 | 100% |
| 接道状況 | 北側5m |
| 現況 | 居住中 |
| 引渡 | 相談 |
| 取引態様 | 仲介 |
| 小学校区 | 苦楽園小学校 |
| 中学校区 | 苦楽園中学校 |
| 備考 | 【価格変更】 2025年11月29日 11,000万円→9,980万円 |
| 情報更新日 | 2025年12月12日 |
| 物件番号 | 00095411 |










