中古戸建兵庫県芦屋市奥池町
価格19,800万円
兵庫県芦屋市奥池町
阪急神戸線「芦屋川」駅バス11分「東おたふく山登山口」停徒歩13分
土地面積/1380.00m²(約417.45坪)
建延面積/324.44m²(約98.14坪)
奥池町のラグジュアリーエリア『ユートピア芦屋』
閑静な邸宅エリアにあります♪
大手ハウスメーカー施工の注文住宅!
シャッター付き駐車場には3台分
平面駐車場には4台分駐車可能♪
大阪湾を望むすばらしい眺望有♪
敷地面積は約417坪有り♪
◆ローンシミュレーション (この物件を購入した場合の月々の支払い価格の一例です)
頭金から返済期間までの数値は、お客様の資金計画にあわせて変更可能です。
スライダーのつまみを移動するか、または数値を直接(半角で)入力してください。
- 借入金額:
- 万円
- ※借入金額は1億円以内に限ります。
- 頭金:
- 万円
- ボーナス返済:
- 万円 × 年2回
- 返済金利:
- %
- 返済期間:
- 年
- 毎月の返済金額(目安)
- 約万円/月
- ※返済期間:5年〜35年までとなります。
- ※ボーナス返済は年2回で計算しています。
- ※借入金額は1億円以内に限ります。
- ※シミュレーションでの試算(計算)結果は、あくまでも目安です。実際にローン契約をする際は、詳細を金融機関にご確認ください。
- ※実際のローン契約の際には、諸費用が別途必要です(手数料や印紙税、保証料など)。契約の際にご確認ください。
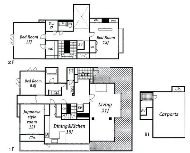
| 間取り | 4LDK |
|---|---|
| 構造 | 木鉄筋コンクリート造3階建 |
| 築年月 | 2001年4月 |
| 駐車場 | 有 |
| 土地権利 | 所有権 |
| 地目 | 山林 |
| 都市計画 | 市街化調整区域 |
| 用途地域 | 無指定 |
| 建ペイ率 | 20% |
| 容積率 | 60% |
| 接道状況 | 南側(公道)6m |
| 現況 | 空室 |
| 引渡 | 相談 |
| 取引態様 | 仲介 |
| 小学校区 | 山手小学校 |
| 中学校区 | 山手中学校 |
| 物件番号 | 00098251 |










