中古戸建兵庫県西宮市広田町
価格13,750万円
兵庫県西宮市広田町
阪急神戸線「西宮北口」駅徒歩18分
土地面積/176.72m²(約53.45坪)
建延面積/266.20m²(約80.52坪)
2025年3月建築♬ミサワホーム施工住宅♬
長期優良住宅、設計・建設性能評価取得!
制震ダンパー採用!防湿土間を設置!
オール電化住宅♬
電動シャッター付ビルトインガレージ!
ガレージ内にはEV充電コンセント設置!
太陽光発電システム搭載!
◆ローンシミュレーション (この物件を購入した場合の月々の支払い価格の一例です)
頭金から返済期間までの数値は、お客様の資金計画にあわせて変更可能です。
スライダーのつまみを移動するか、または数値を直接(半角で)入力してください。
- 借入金額:
- 万円
- ※借入金額は1億円以内に限ります。
- 頭金:
- 万円
- ボーナス返済:
- 万円 × 年2回
- 返済金利:
- %
- 返済期間:
- 年
- 毎月の返済金額(目安)
- 約万円/月
- ※返済期間:5年〜35年までとなります。
- ※ボーナス返済は年2回で計算しています。
- ※借入金額は1億円以内に限ります。
- ※シミュレーションでの試算(計算)結果は、あくまでも目安です。実際にローン契約をする際は、詳細を金融機関にご確認ください。
- ※実際のローン契約の際には、諸費用が別途必要です(手数料や印紙税、保証料など)。契約の際にご確認ください。
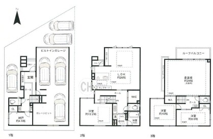
| 間取り | 4SLDK |
|---|---|
| 構造 | 木造3階建 |
| 築年月 | 2025年3月 |
| 駐車場 | 有 |
| 土地権利 | 所有権 |
| 地目 | 宅地 |
| 都市計画 | 市街化区域 |
| 用途地域 | 第2種中高層住居専用地域 |
| 建ペイ率 | 60% |
| 容積率 | 200% |
| 接道状況 | 北側(公道)4.5m |
| 現況 | 空家 |
| 引渡 | 相談 |
| 取引態様 | 仲介 |
| 小学校区 | 広田小学校 |
| 中学校区 | 平木中学校 |
| 物件番号 | 00098444 |












